【外観】現地工事中写真(2026年2月撮影)
- 価格
- 2,980万円
- 間取り
- 5LDK
- 土地面積
- 191.23㎡
- 建物面積
- 106.60㎡
- 築年月
- 2026年3月(新築)
-
TVモニタ付きインターホン
-
独立洗面台
-
浴室乾燥機
- 販売戸数
- -
- 総戸数
- -
- 間取り / 詳細
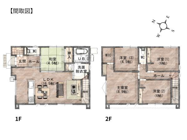
- 5LDK
LDK 16.5帖/和室 4.5帖/洋室 4.5帖/洋室 6.0帖/洋室 6.0帖/洋室 8.9帖 - 向き
- -
- 建物面積(坪数)
- 106.60㎡(32.24坪)
- 土地面積(坪数)
- 191.23㎡(57.84坪)
- 建ぺい率 /
容積率 - 60%/200%
- 築年月
- 2026年3月(新築)
- 駐車場 / 月額
- 有 / -
- 土地権利
- 所有権
- 土地
(敷金 / 保証金) - - / -
- 建物構造
- 木造 / 2階建
- 傾斜地部分面積
- -
- 路地状敷地
- -
- 私道負担面積
- -
- セットバック
- 要 記載なし
- 高圧線下面積
- -
- 施工会社
- -
- 用途地域
- 工業
- 地目 / 地勢
- 原野 / -
- 接道状況
- 一方(南西 公道 4.0m)
- 国土法届出要否
- 不要
- 都市計画
- 市街化区域
- 総区画数 /
販売区画数 - -/-
- 現況
- 完成済み
- その他
法令上の制限 - 文化財保護法/景観法/屋外広告物第1種許可地域
- 取引態様
- 専任媒介
- 引渡し
- 相談
- 取引条件の
有効期限 - 2026年04月24日
- 設備条件
-
- 公営水道 / 浄化槽排水 / オール電化 / 24時間換気システム / 耐震構造 / 食器洗い乾燥機 / システムキッチン / 追焚機能浴室 / 浴室乾燥機 / 温水洗浄便座 / 洗髪洗面化粧台 / トイレ2ヶ所 / 独立洗面台 / ウォークインクロゼット / ウォークインシューズクロゼット / TVモニタ付インターホン / 複層ガラス
- 設備(その他)
-
-
-
- 物件番号
- 97616830
- 管理コード
- 084501-8157
- 建築確認番号
- 第R070855号
- 情報更新日
- 2026年04月10日
- 次回更新予定日
- 2026年04月24日
- 取扱会社
-
- 大分ベスト不動産株式会社
- 大分県大分市大字政所2150
- TEL:0120-073-211
- 大分県知事 (4) 第2975号
- 公益社団法人全国宅地建物取引業保証協会
一般社団法人 大分県宅地建物取引業協会
株式会社 センチュリー21・ジャパン
全国賃貸管理ビジネス協会
全管協少額短期保険株式会社
一般社団法人 大分臨海倫理法人会
不動産相続の相談窓口
一般社団法人 日本不動産コミュニティー
財団法人 日本賃貸住宅管理協会
あいおいニッセイ同和損保:法人代理店
三井住友海上あいおい生命保険:法人代理店
株式会社 日本住宅保証検査機構
- 備考
- ※分筆後多少面積増減の可能性があります。
※所在地 大分市大字屋山字田淵1800番174、1800番25の一部
-
コンビニエンスストア
ファミリーマート大分小佐井店
670m(9分)
-
小学校
小佐井小学校
890m(12分)
-
郵便局
小佐井簡易郵便局
900m(12分)
-
中学校
坂ノ市中学校
1570m(20分)
-
スーパー
マルショク坂ノ市店
1630m(21分)
-
銀行
大分銀行坂ノ市支店
1690m(22分)
-
ドラッグストア
スーパードラッグノザキ坂の市店
1930m(25分)
-
駅
坂ノ市駅(JR 日豊本線)
2300m(29分)
- 月々の支払額
- 円
- 購入希望物件価格
-
万円
- 頭金
-
万円
- 金利
-
%
- 返済額(ボーナス1回分)
-
万円
- 返済期間
-
年
物件の特徴
セールスポイント
【100万円プライスダウン!】
シューズインクロークにウォークインクローゼット、暮らしをいつも整えてくれる収納充実。小佐井小学校まで徒歩約10分、毎日の通学も安心の距離♪
ポイント
【100万円プライスダウン!】50坪超の開放的な敷地に建つ 5LDKの住まい。 ≪ポイント≫ 小佐井小学校 5LDK リビング15帖以上 食器洗乾燥機 駐車場2台
基本情報
設備条件
その他
周辺施設
支払いシミュレーション
※実際の金額と異なる場合があります。
※ボーナスは自動で年2回分で計算されます。
近隣の物件
よく見られている物件
センチュリータウン坂ノ市西ⅢC 新築
2,980万円
-
5LDK(106.60㎡)
お気軽にお問い合わせください
大分ベスト不動産株式会社
0120-073-211
火曜~土曜 10時~18時30分 月曜 12時~18時30分 日曜 9時~18時30分
(休:水曜日)


